It is with great respect to the widows and families of the 26 men who were lost in both Scotia Mine disasters that we write this story. May your families find peace and comfort as we remember your loved ones. This story is now dedicated to their memory.
Long gone are the pickax, shovel, draft animals, and carbide lanterns that have always come to symbolize the coal miners. Automated mining equipment, modern battery-powered lights, and other safety equipment have made the grueling work much safer. However, mine disasters do happen. Cave-ins and gas pocket explosions are the worst fear while other accidents severely injure miners.
One of the worst mine disasters in American History took place at the Scotia Mine in Letcher County, Kentucky. Twenty-six miners and federal mine inspectors would lose their lives in a twin explosion that would forever change the way that mining operations would happen from that moment forward.
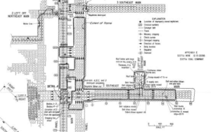
Scotia Mine

Blue Diamond Coal Company has its main office in Knoxville, Tennessee. The Company opened up a subsidiary named the Scotia Mine in July of 1962. The mine opened in Ovenfork, Letcher County, Kentucky. This was northeast of the town of Cumberland, Harlan County, by fourteen miles.
The mine had a nine-slope entry into the Imboden coal bed. This coal bed had an average thickness of 72 inches in depth. On July 21, 1975, an automatic elevator was being constructed for the miners. This work had not been completed at the time of the explosions. The elevator shaft was being used as an air intake opening only at the time.
Mine Inspections
There were two mine inspections that were held in 1976. The first was a federal mine inspection which was completed on February 27, 1976. On the evening shift of March 8, 1976, a Federal Coal Mine Inspector conducted a Health and Safety Technical Inspection.
The First Explosion

On the morning of March 9, 1976, at 7 a.m. the day shift of 106 men entered the mine and was transported by battery-powered portal buses and locomotives to work. At 11:45 a.m. that morning, an explosion from a pocket of methane gas and coal dust rocked the Scotia mine killing 15 miners.
All thirteen men who were working in the 2 Southeast Main area and the two men who were working in the Left Section off of the 2 Southeast Main area died as a direct result of the explosion. Ninety-one men that were working in other parts of the mine did make their way to the surface of the mine without mishap.
MESA investigators believe that this explosion happened because of poor ventilation and an electrical spark from a battery-powered locomotive or another electrical device. The first explosion originated near the No. 31 crosscut in the 2 Southeast Main area. It is believed that the forces of the explosion expanded to all five 2 Southeast Main Entries, extended into 2 Left sections off of 2 Southeast Main, and lost its forces by the time it reached Northeast Main junction.
Recovery and Second Explosion

The bodies of the men were removed from the mine and inspections began. It was important for all concerned to find out exactly how the mine exploded and if anyone was to blame.
On March 11, 1976, at 11:30 p.m. just two days later, after the recovery of the 15 men had been completed. Thirteen miners also went down near the entrance of 2 Southeast Main to work. A second explosion happened that killed 11 rescue miners and federal mine inspectors. There were 2 repairmen that were a short distance out from the entrance and escaped injury.
MESA Investigators also believe that poor ventilation was also a factor in this explosion. It is believed that the second explosion originated near the entrance of 2 Left Section off 2 Southeast Main. It is believed that a methane-air mixture was ignited by one of five possible sources. An electric arc or spark from a battery-equipped deluge system; scoop batteries, three battery-equipped telephones, residual fires, or a frictional spark from a fall of the mine roof on a roof-bolting machine.
The second explosion went throughout the 2 Left Section, all five of the 2 Southeast Main sections, and stopped near the 2 Southeast Main junction in the northern direction. The explosion had also stopped at the Southeast Main junction in the southern direction.
The Second Recovery

After the second explosion, the mine was sealed to let the gasses inside settle and stabilize. Rescue teams began on July 14, 1976, to re-establish ventilation in the mine, repair the entrances, and drain the water accumulating in the mine. Inch by inch they made their way to the men that were victims to the second explosion.
Over the summer months, a group of twenty widows of the miners picketed the mine to protest the slow-moving actions to recover their husbands. The picket line was often breached by miners in trucks and automobiles. They would hurl insults and obscenities at the widows for picketing.
It is thought that behind the actions of some of these picket line breakers is that they felt that the mine should have never closed because it was hurting their incomes.
Re-entry was permitted on November 19, 1976, 253 days after the Second Scotia Mine Disaster. The eleven men were finally brought to the surface. There were heated words spoken and many tears from the families as the men were laid upon three mine rail cars in zippered plastic bags.
The bodies were taken to pathologists to determine the cause of the deaths. Six widows had their husbands autopsied to determine if they had black lung disease. The bodies were then given to the families for burial.
Representative Carl D. Perkins gave a speech just down the hill from where the bodies were being brought out. In his speech, he laid the blame upon the Federal Mining Enforcement and Safety Administration for their bad judgment and laxity of enforcement of the laws on the books.
Debate Over Recovery

There is debate over if the men should have returned to the mines sooner to recover the bodies. One side commends the actions of the rescuers to take their time for the sake of the safety of the men to prevent more loss of life. Another side feels that the longer action was taken so that re-establishing production of the mine could resume faster.
New Safety Law Passed
Federal Mine Safety and Health Act of 1977 was passed as a direct result of this mine disaster. The Act of 1969 was strengthened in this new act. In this new Act, the Mine Safety and Health Administration was moved from the Department of the Interior to the Department of Labor.
Lawsuits
Shortly after the twin mining disasters, civil and criminal cases began to be fought over in the court system. Both civil and criminal charges began in 1977 with the Widows suing because of the deaths of their husbands.
The Widow’s Suit

In 1977 the widows of the men who were killed in both mining disasters sued Blue Diamond Coal Company of Knoxville, Tennessee. The suit was for sixty million dollars from the fifteen widows for negligence against Blue Diamond. The suit is named Boggs v. Blue Diamond Coal.
The United States District Court Judge Howard David Hermansdorfer for the Eastern District of Kentucky ruled that under Kentucky’s Workmen Compensation Act, the coal company was exempt from tort liability. The case was dismissed.
The Court of Appeals for the Sixth Circuit held that under the Kentucky Workman’s Compensation Act, Blue Diamond Coal Company as a parent company was not immune from tort liability because of its own independent acts of negligence in the matter. They then sent the matter back to Judge Hermansdorfer who stepped aside from the case.
The press and public pressed Judge Hermansdorfer because of conflicts of interest because he owned investments in several coal mining companies. While he still presided over the criminal case, the civil case brought by the widows then was re-assigned to Judge William Bertelsmann.
The case was finally settled in 1980 when Blue Diamond Coal Company agreed to pay the widows $5.5 million dollars.
Blue Diamond Coal Company v. the US Government Civil Case
On April 13, 1978, the Blue Diamond Coal Company filed a civil suit against the U.S. Department of the Interior. The suit is asking for $9,327,160 in damages resulting from the second explosion on March 11th. The suit contends that the Interior and Mine Enforcement and Safety Administration employees were negligent in their acts and omissions and caused the second explosion that killed eight miners and three federal inspectors.
The Criminal Trial

Three years after the explosions Patrick Molloy, the US Attorney’s Office in the Eastern District of Kentucky, brought criminal charges against both mining companies and was among the last of the suits to be brought. The United States v. Blue Diamond and Scotia, the federal prosecutors brought charges of failing to make regular checks for methane, falsifying ventilation maps, improper training of the miners in safety equipment, and other charges.
Three years later, six years after the deaths of the 26 men, Scotia pleaded guilty to two criminal charges in the case. In the courtroom of Federal Judge G. Wix Unthank also pleaded no contest to three of the other charges in the case. In turn, the US Attorney’s Office in the Eastern District of Kentucky agreed to drop all other charges and recommended a fine of $80,000. The amount was the maximum that was allowed at the time by the mine safety laws.
Alternative to the Fines
The US Attorney’s Office in the Eastern District of Kentucky recommended that Judge Unthank order Scotia Mining Company to either pay the fine or contribute $60,000 to charitable organizations that had given relief to the disaster. The Eastern District’s Probation Office provided the judge with the list of nonprofit organizations and the judge chose from it. This marked the end of the criminal trials and penalties against Scotia. Within two years all parties involved had settled among themselves and with the miner’s families.
The Second Widow’s Lawsuit

There were legal papers filed on behalf of the widows of the lost miners of the second explosion in Federal Court in Pikeville, Kentucky. In January of 1981, the first arguments were heard on whether the federal government should be legally responsible for the second explosion at the Scotia Coal Company mine.
The reason was that it had just passed two federal inspections, one of which was just hours before the first explosion. The widows claimed that the federal government was negligent in their duties to protect the miners and this led to their deaths.
Attorney Gerald Stern of Washington, D.C., argued that the men were relying on the federal Mining Enforcement and Safety Administration (MESA) to act on their behalf if the mines were not safe. The mine was unsafe and MESA allowed them to continue working.
The U.S. Department of Justice sought a dismissal of the case. The basis for their argument was that the men knew that there had been a previous explosion just days before and that the ventilation controls had been destroyed.
Insurance Company’s Case
Two insurance companies filed a $1.6 million dollar lawsuit against Interior Department’s MESA. The two insurance companies held coverage plans on the Scotia mine at the time of the two explosions. The suit was filed in the Pikeville’s U.S. District Court. The charges alleged that MESA’s negligence was the cause of both explosions on March 9th and 11th.
Other Mine Disasters that Kentucky Tennessee Living will Cover
Farmington
In Memory of Those Who Lost Their Lives
Glenn Barker, who was 29 years old, Dennis Boggs, who was 27 years old, Everett Scott Combs, who was 29 years old, Virgil Coots, who was 24 years old, Don Creech, who was 30 years old, Larry David McKnight, who was 28 years old, Earl Galloway, who was 44 years-old, David Gibbs, who was 30 years-old, Robert Griffith, who was 24 years-old, John Hackworth, who was 29 years-old, J. B. Holbrook, who was 43 years-old, Kenneth B. Kiser, who was 45 years-old, Roy McKnight, who was 31 years-old, Lawrence Peavy, who was 25 years-old, Carl Polly, who was 47 years-old, Richard M. Sammons, who was 55 years-old, Tommy Ray Scott, who was 24 years-old, Ivan Gail Sparkman, who was 34 years-old, James Sturgill, who was 46 years-old, Jimmy W. Sturgill, who was 20 years-old, Monroe Sturgill, who was 40 years-old, Kenneth Turner, who was 25 years-old, Willie D. Turner, 25 years-old, Grover Tussey, who was 45 years-old, Denver Widner, who was 31 years-old, James Williams, who was 23 years-old
Sources
Bodies of 11, Entombed in Mine 253 Days, Recovered
https://www.nytimes.com/1976/11/20
Scotia Mine
https://en.wikipedia.org/wiki/Scotia_Mine
Scotia Coal Company
Scotia Mine Explosions
https://usminedisasters.miningquiz.com/saxsewell/scotia.htm
The Scotia Mine Disaster
https://www.heyburncollections.org/exhibits/show/scotia/scotia
The Mountain Eagle
The Way We Were
September 1, 1977
April 13, 1978
September 21, 1978
January 25, 1979
May 31, 1979
June 14, 1979
June 28, 1979
September 27, 1979
August 21, 1980
January 22, 1981
March 3, 2010
The Courier-Journal. March 16, 1976
Copyright and Other Information
All photos are in the public domain unless otherwise noted. This includes photos dated before 1923. All other photos are used with permission or under the education fair use statute of the US copyright law.
This work is licensed under a Creative Commons Attribution-Non-Commercial-No-Derivatives 4.0 International License.
Social Media
For more about us, you can visit our Facebook page:
https://www.facebook.com/kytnliving
Our Twitter page:
https://www.twitter.com/KYTNLiving
Our YouTube Channel:
https://www.youtube.com/kytnliving
When we forget our past and who we are as a people, then we become who “they” say we are. ~~ David Sergent
I have attended the University of Kentucky. I have an Associates Degree from Hazard Community College and Technical School. I have also attended the University of Pikeville. I have taken several classes in Journalism as well as in the Appalachian History, Literature, and Sociology during my time at those schools.
I was born in Florida and grew up in Burdine, Kentucky. I have been married to David W. Sergent since May 4, 2013. I have two children and four grandchildren from a previous marriage. I currently live in Tennessee but my hope is to one day come back home to live in the beautiful mountains once more.